Property Type
Condo, Apartment
Parking
Garage: Yes, 2 parking
MLS #
X12484839
Size
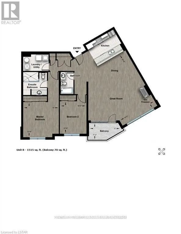
1400 - 1599 sqft
Basement
None
Listed on
-
Lot size
-
Tax
-
Days on Market
-
Year Built
-
Maintenance Fee
-
